Apartament 4 camere de vanzare in Marasti, Cluj Napoca, ID VA4 156977
Pret: 600,000 €
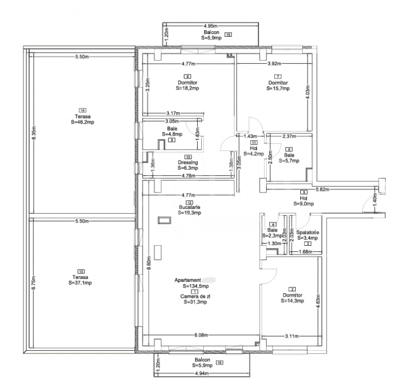
Apartament LUX cu 4 camere de 150 mp, terasa 96 mp, Marasti!
Va oferim spre vanzare un apartament cu 4 camere finisat si mobilat de lux, situat intr-un imobil nou, in una dintre cele mai cautate zone ale orasului, cartier Marasti!
Apartamentul are suprafata utila de 150 mp + terasa + 2 balcoane si este compartimentat astfel:
- hol;
- living open space cu bucatarie;
- spalatorie;
- dormitor matrimonial cu baie si dressing propriu;
- 2 dormitoare;
- 2 bai;
- terasa generoasa de 96 mp!
- 2 balcoane ce insumeaza aproximativ 12 mp!
Datorita zonei in care este situat, apartamentul ofera accesibilitate ridicata fata de puncte de interes cotidian, precum institutii de invatamant, magazine, banci, farmacii, statii de autobuz, la aproximativ 10-15 minute distanta de centru!
Apartamentul se afla la etajul 3 intr-un imobil cu 6 etaje construit in anul 2022 si este orientat Vest, fiind un apartament luminos in special in a doua parte a zilei!
Locuinta dispune de 2 parcari subterane care se pot achizitiona pentru suma de 20.000 euro fiecare.
Recomandam acest apartament celor care isi doresc o locuinta spatioasa, cu spatiu exterior generos, intr-o zona cu accesibilitate ridicata fata de punctele de interes cotidian.
Pentru mai multe informatii sau programarea unei vizionari, va stam cu drag la dispozitie!
Echipa Napoca Imobiliare
Localizare si Caracteristici
Tip proprietate: Apartament
Nr. camere: 4
Cartier: Marasti
Zona: Aurel Vlaicu
Etaj: 3/6
Suprafata utila: 150 m2
Suprafata construita: 270 m2
Nr. balcoane: 2
Nr. terase: 1
Nr. bucatarii: 1
Nr. garaje: 2
Confort: 1
Compartimentare: semidecomandat
Tip Constructie: Caramida
Constructie: Imobil nou
Reabilitat termic
An Constructie: 2022
Utilitati
Acces internet: Telefon Fibra optica Cablu Wireless
Finisaje
lux
centrala termica
Termoizolant PVC
lemn
metalica
Finisaj bucatarie
Finisaj baie
Dotari
Ma intereseaza oferta
Convertor valutar
Calculator de credite
Oferte similare
Apartament 4 camere de vanzare in Marasti, Cluj Napoca
4 camere 1 baie 56 m2 utili Etaj 2/4
Apartament 4 camere de vanzare in Marasti, Cluj Napoca
4 camere 2 bai 84.47 m2 utili Etaj 8/9
Apartament 4 camere de vanzare in Marasti, Cluj Napoca
4 camere 2 bai 78.36 m2 utili Etaj 2/8
Apartament 4 camere de vanzare in Marasti, Cluj Napoca
4 camere 2 bai 147 m2 utili Etaj 4/4


