Casa 16 camere de vanzare in Zorilor, Cluj Napoca, ID VC16 96254
Pret: 880,000 €
Oportunitate de afacere in cartierul Zorilor, Cluj-Napoca!
Va oferim spre vanzare o casa individuala alcatuita dintr-un imobil care in momentul de fata functioneaza ca pensiune, cu un portofoliu de clienti activi, dar poate fi usor transformata intr-o vila spatioasa pentru o familie care cauta spatiu si confort, sau intr-o afacere de tip birouri, clinica privata sau orice alt domeniu de activitate datorita posibilitatii de recomapartimentare a incaperilor.
Unitatea are teren de 600 mp, cu front de 49 m la 2 strazi, avand 8 locuri de parcare in curtea interioara, si gradina cu spatiu verde pentru zona de relaxare.
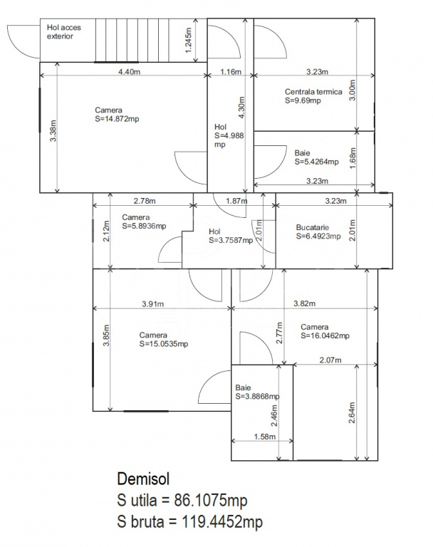
Suprafata utila a imobilului este de 460 mp, structurata pe 4 niveluri D+P+E+M si compartimentata astfel:
Demisol: 3 camere, 2 incaperi camere tehnice, 2 bai, 1 bucatarie, 1 hol acces, 1 hol;
Parter 1: 2 camere cu bai proprii, 1 camera tip apartament cu bucatarie si baie proprie, 1 birou cu oficiu si baie;
Parter 2: este compus dintr-un garaj 26 mp si un spatiu tehnic 56 mp care pot fi alipite si amenajate in sala de conferinte sau salon, in suprafata totala de 82 mp, cu acces din exterior/curte;
Etaj: 1 oficiu, 1 hol, 4 camere cu baie proprie fiecare;
Mansarda: 1 oficiu, 1 hol, 4 camere cu baie proprie, iar 2 dintre acestea au si un oficiu/balcon - spatiu inchis.
Compartimentarea este redata in schitele atasate, dar recomandam vizionarea proprietatii fizic pentru a avea o imagine clara asupra acesteia.
Casa este construita pe fundatie de beton, cu grinzi de sustinere, pereti portanti care permite foarte usor recompartimentarea in functie de necesitati daca e cazul, acoperis din structura de lemn si acoperit cu tabla de tip tigla.
Finisajele existente sunt moderne si evidentiate prin: parchet laminat, gresie si faianta in oficii si bai, tamplarie PVC, usi interioare din lemn, iar incalzirea este asigurata de 2 centrale termice, iar pentru apa calda este instalat un Puffer pentru asgiurarea permanenta a necesarului de apa calda menajera.
Pentru mai multe detalii sau pentru stabilirea unei vizionari, contactati-ne cu incredere!
O zi frumoasa, Echipa Napoca Imobiliare!
Localizare si Caracteristici
Tip proprietate: Casa
Tip casa: NA
Nr. camere: 16
Cartier: Zorilor
Zona: Observatorului
Suprafata utila: 480 m2
Suprafata construita: 718 m2
Suprafata teren: 600 m2
Nr. balcoane: 8
Nr. terase: 1
Nr. bucatarii: 4
Nr. parcari: 8
Nr. garaje: 1
Front la strada: Da - 56 m
Curte: individuala
Invelitoare acoperis: tigla
Amenajare strazi: asfaltate
Mijloace de transport in comun
Iluminat stradal
An Constructie: <2000
Regim inaltime: D+P+1+M
Utilitati
Acces internet: Telefon Fibra optica
Finisaje
modern
centrala termica
Finisaj bucatarie
Finisaj baie
Dotari
Ma intereseaza oferta
Convertor valutar
Calculator de credite
Oferte similare
Casa 5 camere de vanzare in Zorilor, Cluj Napoca
5 camere 4 bai 312 m2 utili 923 m2 teren
Casa 15 camere de vanzare in Zorilor, Cluj Napoca
15 camere 8 bai 648 m2 utili 400 m2 teren
Casa 16 camere de vanzare in Zorilor, Cluj Napoca
16 camere 13 bai 480 m2 utili 600 m2 teren
Casa 11 camere de vanzare in Zorilor, Cluj Napoca
11 camere 7 bai 688 m2 utili 700 m2 teren


