Casa 4 camere de vanzare in Dambul Rotund, Cluj Napoca, ID VC4 157850
Pret: 410,000 €
Unitate de duplex in cartierul Dambul Rotund, Cluj-Napoca
Va oferim spre vanzare o unitate de duplex situata in cartierul Dambul Rotund, cu o accesibilitate excelenta catre centrul orasului, statii de transport in comun, magazine, farmacii si alte puncte de interes.
Imobilul dispune de un teren de 190 mp si are un regim de inaltime Subsol + Parter + Etaj + Etaj retras, cu o suprafata utila generoasa de aproximativ 170 mp.
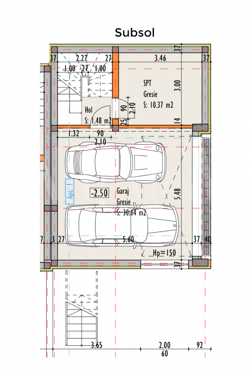
Compartimentare:
Subsol: un garaj pentru doua masini si un spatiu ideale pentru depozitare sau multifunctional.
Parter: living spatios de aproximativ 28 mp, bucatarie separata, baie de serviciu si casa scarii
Etaj: doua dormitoare deservite de o baie, hol
Etaj retras: dormitor matrimonial cu baie proprie si terasa
Casa se preda la stadiul de semifinisat, avand toate instalatiile sanitare si electrice trase pe pozitii, pereti gletuiti si tamplarie PVC cu geamuri termoizolante. Confortul termic este asigurat de centrala termica proprie, cu incalzire prin pardoseala.
Exteriorul este amenajat, curtea fiind prevazuta cu gazon, alei pietonale si loc de parcare pavat.
Imobilul are disponibilitate imediata, iar achizitia se poate face atat din surse proprii, cat si prin credit bancar.
Pentru mai multe detalii sau pentru a programa o vizionare, va stam la dispozitie cu incredere.
Localizare si Caracteristici
Tip proprietate: Casa
Tip casa: duplex
Nr. camere: 4
Cartier: Dambul Rotund
Zona: Maramuresului
Suprafata utila: 170 m2
Suprafata construita: 255 m2
Suprafata teren: 200 m2
Nr. balcoane: 2
Nr. bucatarii: 1
Nr. parcari: 1
Nr. garaje: 1
Front la strada: Da - 19 m
Curte: individuala
Invelitoare acoperis: tigla
Amenajare strazi: asfaltate
Mijloace de transport in comun
Iluminat stradal
An Constructie: 2025
Regim inaltime: D+P+E+Er
Utilitati
Acces internet: Telefon Fibra optica Cablu Wireless
Finisaje
semifinisat
incalzire in pardoseala
Dotari
Ma intereseaza oferta
Convertor valutar
Calculator de credite
Oferte similare
Casa 2 camere de vanzare in Dambul Rotund, Cluj Napoca
2 camere 1 baie 100 m2 utili 200 m2 teren
Casa 11 camere de vanzare in Dambul Rotund, Cluj Napoca
11 camere 9 bai 283 m2 utili 730 m2 teren
Casa 4 camere de vanzare in Dambul Rotund, Cluj Napoca
4 camere 3 bai 134 m2 utili 300 m2 teren
Casa 4 camere de vanzare in Dambul Rotund, Cluj Napoca
4 camere 3 bai 195 m2 utili 180 m2 teren


