Casa 5 camere de vanzare in Dambul Rotund, Cluj Napoca, ID VC5 146890
Pret: 570,000 €
Casa cuplata cu 600 mp teren!
Va propunem spre vanzare o casa situata in cartierul Dambul Rotund, intr-o zona foarte accesibila si cu un view superb spre centrul Orasului Cluj-Napoca!
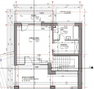
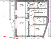
Casa are o suprafata utila de 180 mp dispusa pe P+E+Er dupa cum urmeaza:
Parter:
- living open-space cu bucataria;
- baie;
- spatiu de depozitare/debara.
Etaj:
- 1 dormitor matrimonial cu dressing si baie proprie;
- 2 dormitoare;
- 1 baie.
Etaj retras:
- 1 camera hobby;
- 1 spatiu de depozitare/ dressing;
- 1 baie;
- 2 terase, dintre care una de 17 mp cu priveliste spre oras.
Confortul termic este asigurat de centrala termica cu incalzire prin pardoseala, geamuri Rehau Sinego si izolatie cu vata bazaltica de 15 mp.
Terenul aferent casei este de aproximativ 600 mp si se va preda amenajat.
Pentru mai multe detalii, vizionari si oferte de pret, nu ezitati sa ne contactati!
Cu drag, echipa Napoca Imobiliare!
Localizare si Caracteristici
Tip proprietate: Casa
Tip casa: NA
Nr. camere: 5
Cartier: Dambul Rotund
Zona: Maramuresului
Suprafata utila: 180 m2
Suprafata construita: 220 m2
Suprafata teren: 600 m2
Nr. balcoane: 1
Nr. terase: 1
Nr. bucatarii: 1
Nr. parcari: 2
Front la strada: Da - 16 m
Curte: individuala
Invelitoare acoperis: tabla
Amenajare strazi: asfaltate
Mijloace de transport in comun
Iluminat stradal
An Constructie: 2024
Regim inaltime: P+E+Er
Utilitati
Acces internet: Telefon Fibra optica Cablu Wireless
Finisaje
semifinisat
incalzire in pardoseala
Dotari
Ma intereseaza oferta
Convertor valutar
Calculator de credite
Oferte similare
Casa 2 camere de vanzare in Dambul Rotund, Cluj Napoca
2 camere 1 baie 100 m2 utili 200 m2 teren
Casa 5 camere de vanzare in Dambul Rotund, Cluj Napoca
5 camere 3 bai 250 m2 utili 200 m2 teren
Casa 6 camere de vanzare in Dambul Rotund, Cluj Napoca
6 camere 3 bai 250 m2 utili 723 m2 teren
Casa 5 camere de vanzare in Dambul Rotund, Cluj Napoca
5 camere 3 bai 240 m2 utili 200 m2 teren


