Casa 5 camere de vanzare in Dezmir, ID VC5 156300
Pret: 239,000 €
Casa individuala P+E+M / 172 mp, teren 440 mp, la 8 minute de Aeroport!
Va oferim spre vanzare o casa individuala situata in localitatea Dezmir cu accesibilitate ridicata fata de Cluj-Napoca, la doar 8 minute distanta de Aeroportul International Avram Iancu Cluj-Napoca!
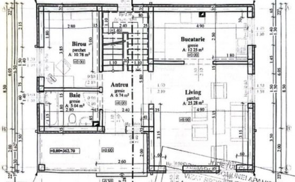
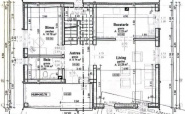
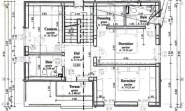
Casa are suprafata de 172 mp si este structurata pe 3 niveluri, astfel:
- parter: hol, casa scării, camera/birou, living, bucătărie separată cu zona pentru servit masa, baie;
- etaj: hol, 2 dormitoare, dormitor matrimonial cu dressing și baie proprie, baie, balcon;
- mansarda: spatiu generos, cu posibilitatea de a se amenaja conform preferintelor.
Casa se vinde la alb, cu pereti zugraviti, sapa turnata, instalatiile electrice si sanitare pe pozitii, centrala termica proprie cu incalzire in pardoseala, tamplarie cu 3 foi de sticla, avand structura din beton si caramida, izolatie de polistiren de 10cm si de 15cm, acoperis de tigla.
Terenul de 440 mp este amenajat cu pavaj si gazon, fiind imprejmuit cu gard metalic si exista posibilitatea parcarii a 2 masini.
Casa dispune de CF.
Pentru mai multe infomatii sau programarea unei vizionari, va stam cu drag la dispozitie!
Echipa Napoca Imobiliare
Localizare si Caracteristici
Tip proprietate: Casa
Tip casa: NA
Nr. camere: 5
Cartier: Dezmir
Zona: Dezmir
Suprafata utila: 172 m2
Suprafata construita: 257.4 m2
Suprafata teren: 440 m2
Nr. balcoane: 1
Nr. bucatarii: 1
Nr. parcari: 2
Front la strada: Da - 16 m
Curte: individuala
Invelitoare acoperis: tigla
Amenajare strazi: asfaltate
An Constructie: 2024
Regim inaltime: P+E+M
Utilitati
Finisaje
semifinisat
centrala termica
Dotari
Ma intereseaza oferta
Convertor valutar
Calculator de credite
Oferte similare
Casa 4 camere de vanzare in Dezmir
4 camere 3 bai 275 m2 utili 900 m2 teren
Casa 3 camere de vanzare in Dezmir
3 camere 4 bai 170 m2 utili 400 m2 teren
Casa 4 camere de vanzare in Dezmir
4 camere 3 bai 126 m2 utili 500 m2 teren
Casa 4 camere de vanzare in Dezmir
4 camere 3 bai 120 m2 utili 490 m2 teren


