;
English

Spatiu comercial de vanzare in Buna Ziua, Cluj Napoca, ID VSC 155926
Pret: 175,000 € 179000€

Comision 0! Spatiu comercial de vanzare in Cluj-Napoca, cartier Buna Ziua, Bonjour Residence

Napoca Imobiliare va propune spre vanzare spatiu comercial in Cluj-Napoca, cartierul Buna Ziua, situat la parterul unui bloc nou din ansamblul Bonjour Residence, zona intens circulata si inconjurata de spatii comerciale cu diverse activitati.

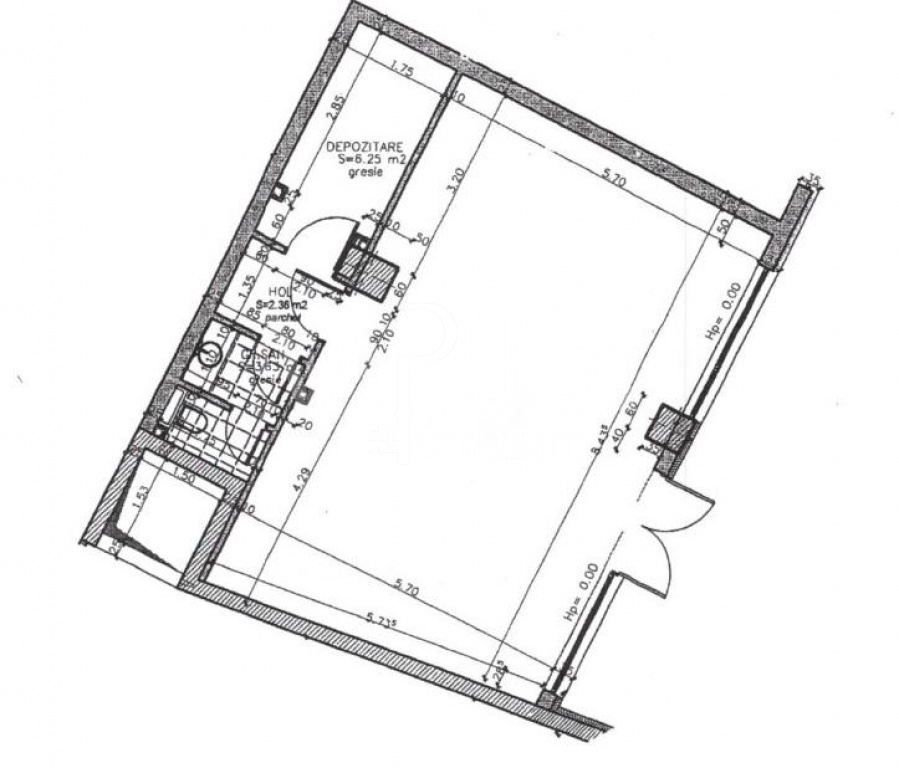
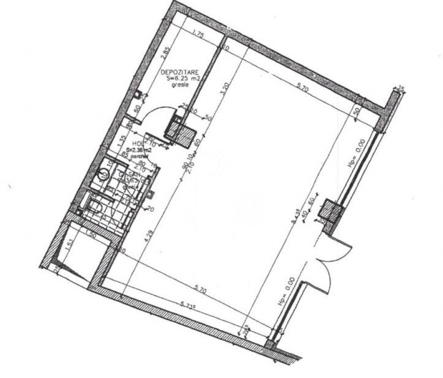
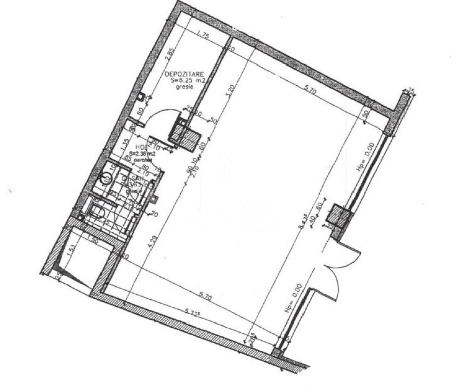
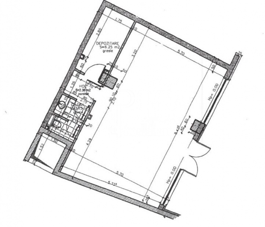
Spatiul are o suprafata utila de 62 mp, compartimentata eficient:

-open space – 50 mp,

-spatiu pentru depozitare – 6 mp,

-1 grup sanitar,

-1 hol.

In plus, beneficiaza de vitrine generoase si de o terasa de aproximativ 80 mp in fata spatiului, oferind vizibilitate si un avantaj major pentru orice tip de activitate comerciala.

Proprietatea se preteaza pentru multiple destinatii – magazine, cafenele, show-room, cabinete sau alte activitati comerciale.
La pretul afisat nu se adauga TVA!

Daca sunteti in cautarea unui spatiu comercial de vanzare in Cluj-Napoca, cartier Buna Ziua, aceasta oferta reprezinta o oportunitate excelenta pentru afacerea dumneavoastra.

Va asteptam cu drag la vizionare!
Echipa Napoca Imobiliare

Oferta Exceptionala
Exclusivitate
Comision 0%

Localizare si Caracteristici

Tranzactie: Vanzare
Tip proprietate: Spatiu comercial
Nr. incaperi: 2
Cartier: Buna Ziua
Zona: Bonjour Recidence
Etaj: parter/8
Suprafata utila: 62 m2
Suprafata construita: 75 m2
Nr. grupuri sanitare: 2
Nr. terase: 1
Suprafata terase: 80 m2
Vitrina
Inaltime spatiu: 3 m
An Constructie: 2018
Regim inaltime: P

Utilitati

Apa Curent Gaz Canalizare
Acces internet: Fibra optica Wireless

Finisaje

Finisat:
modern
Incalzire cu:
centrala termica
Pereti:
Lavabil

Dotari

Disponibilitate imediata
Iluminat: Luminat exterior Lumina naturala
Alte informatii: Acces: Persoane

Pentru detalii contactati-ne

GABRIEL BOITOR
GABRIEL BOITOR
Senior Broker Coordonator
  0754693331 
office@napocaimobiliare.ro

Ma intereseaza oferta


Convertor valutar

Calculator de credite

Oferte similare

VSC 130489 - Spatiu comercial de vanzare in Buna Ziua, Cluj Napoca
275,000 €
VSC 99864 - Spatiu comercial de vanzare in Buna Ziua, Cluj Napoca
375,000 € 406000€
VSC 132139 - Spatiu comercial de vanzare in Buna Ziua, Cluj Napoca
290,000 €
VSC 112225 - Spatiu comercial de vanzare in Buna Ziua, Cluj Napoca
3,640,000 €

Spatiu comercial de vanzare in Buna Ziua, Cluj Napoca

10 incaperi vitrina 1820 m2 utili

Ce spun clientii nostri

Toate feedback-urile

Scrie-ne un feedback

Parerea ta conteaza foarte mult pentru noi! Te rugam sa ne comunici orice sfat, recomandare, multumire sau nemultumire pe care o ai. Te asiguram ca acest feedback va ajunge imediat la departamentul de management.