Casa 4 camere de vanzare in Iris, Cluj Napoca, ID VC4 117401
Pret: 389,000 €
Duplex nou cu 4 camere, terasa, 250 mp teren in Cartierul Tineretului, ideal pentru o familie tanara!
Imobilul are peretii din caramida termoizolati in exterior, acoperis cu tabla, ferestrele si usile exterioare de tip termopan, centrala termica pe gaz si incalzire in pardoseala.
Casa are suprafata utila de 120 mp desfasurata pe 3 niveluri:
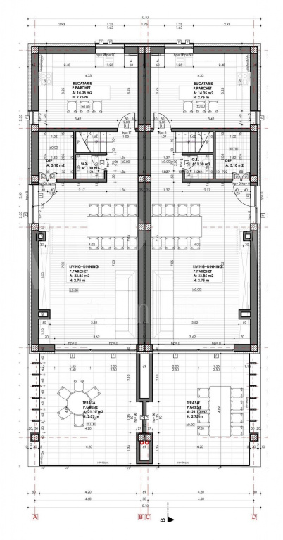
Parter:
- living cu dining si iesire pe terasa,
- bucatarie inchisa,
- baie,
- debara,
- hol,
- terasa
Etaj:
- 3 dormitoare,
- 2 bai,
- hol,
- 2 balcoane;
Demisol:
- camera hobby sau spatiu de depozitare.
Se preda la cheie in exterior si semifinisat in interior.
In fata casei se amenajeaza parcarea, iar in spate zona verde.
Termenul de finalizare este vara anului 2022.
Pentru mai multe detalii, oferte de pret si pentru a programa o vizionare, contactati-ne cu incredere!
Va stam cu drag la dispozitie,
Echipa Napoca Imobiliare.
Localizare si Caracteristici
Tip proprietate: Casa
Tip casa: duplex
Nr. camere: 4
Cartier: Iris
Zona: Cartierul Tineretului
Suprafata utila: 120 m2
Suprafata construita: 152 m2
Suprafata teren: 200 m2
Nr. balcoane: 2
Nr. terase: 1
Nr. bucatarii: 1
Nr. parcari: 2
Front la strada: Da - 12 m
Curte: individuala
Invelitoare acoperis: tabla
Amenajare strazi: asfaltate
An Constructie: 2022
Regim inaltime: S+P+E
Utilitati
Acces internet: Fibra optica
Finisaje
semifinisat
centrala termica
Ma intereseaza oferta
Convertor valutar
Calculator de credite
Oferte similare

Casa 17 camere de vanzare in Iris, Cluj Napoca
17 camere 10 bai 600 m2 utili 1600 m2 teren
Casa 5 camere de vanzare in Iris, Cluj Napoca
5 camere 3 bai 130 m2 utili 506 m2 teren
Casa 6 camere de vanzare in Iris, Cluj Napoca
6 camere 3 bai 250 m2 utili 424 m2 teren
Casa 5 camere de vanzare in Iris, Cluj Napoca
5 camere 4 bai 169 m2 utili 500 m2 teren


