Teren intravilan pentru constructii de vanzare in Manastur, Cluj Napoca, ID VT 150077
Pret: 1,000,000 €
Teren pentru bloc in Cluj-Napoca!
Va propunem spre vanzare un teren in cartierul Manastur, cu PUD in elaborare.
Conform PUD-ului depus se va putea contrui un bloc cu un regim de inaltime D+P+3E+Er, detaliat dupa cum urmeaza:
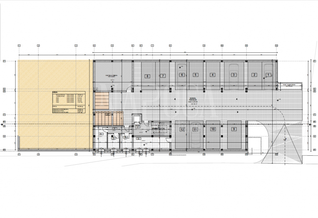
Demisol:
1. Parcaje subterane 399,28 mp
2. Centrala termica 34,04 mp
3. Boxa 8,30 mp
4. Boxa 5,67 mp
5. Boxa 5,68 mp
6. Boxa 14,02 mp
TOTAL 467,10 mp
SUPRAFATA CONSTRUITA 478,50 mp
SUPRAFATA UTILA 585,87 mp
SUPRAFATA CASA SCARII 14,97 mp
Parter:
SPATIU COMERCIAL
1. Spatiu comercial 49,82 mp
2. Vestiar femei 17,94 mp
3. Vestiar barbati 16,90 mp
4. Hol Acces 35,41 mp
5. Depozitare 29,66 mp
6. Birou 22,86 mp
7. Birou 11,47 mp
8. Arhiva 4,04 mp
9. Boxa curatenie 2,15 mp
TOTAL 190,25 mp
SUPRAFATA CONSTRUITA 252,50 mp
SUPRAFATA UTILA 190,25 mp
SUPRAFATA CASA SCARII 9,52 mp
Etaj 1/2/3:
(descrierea este pentru un singur etaj, cele 3 fiind identice)
APARTAMENT TIP 1
1. Hol Acces 5,03mp
2. Baie 4,86 mp
3. Baie 4,20 mp
4. Hol 2,03 mp
5. Camera de zi 22,58 mp
6. Bucatarie 12,15 mp
7. Dormitor 13,03 mp
8. Dormitor 13,82 mp
9. Balcon 11,49 mp
10. Balcon 11,20 mp
TOTAL 77,70 mp
BALCOANE 22,69 mp
APARTAMENT TIP 2
1. Hol Acces 13,17 mp
2. Baie 4,45 mp
3. Baie 3,23 mp
4. Camera de zi 21,95 mp
5. Bucatarie 12,05 mp
6. Dormitor 12,00 mp
7. Dormitor 14,64 mp
8. Balcon 18,20 mp
TOTAL 81,50 mp
BALCOANE 18,20 mp
APARTAMENT TIP 3
1. Baie 4,20 mp
2. Baie 3,76 mp
3. Hol 6,14 mp
4. Camera de zi 30,42 mp
5. Bucatarie 10,70 mp
6. Dormitor 12,00 mp
7. Dormitor 15,18 mp
8. Dormitor 12,15 mp
9. Camara 3,60 mp
10. Balcon 14,93 mp
SUPRAFATA CONSTRUITA 348,50mp
SUPRAFATA UTILA 257.35 mp
SUPRAFATA CASA SCARII 23,33 mp
SUPRAFATA BALCOANE 55,70 mp
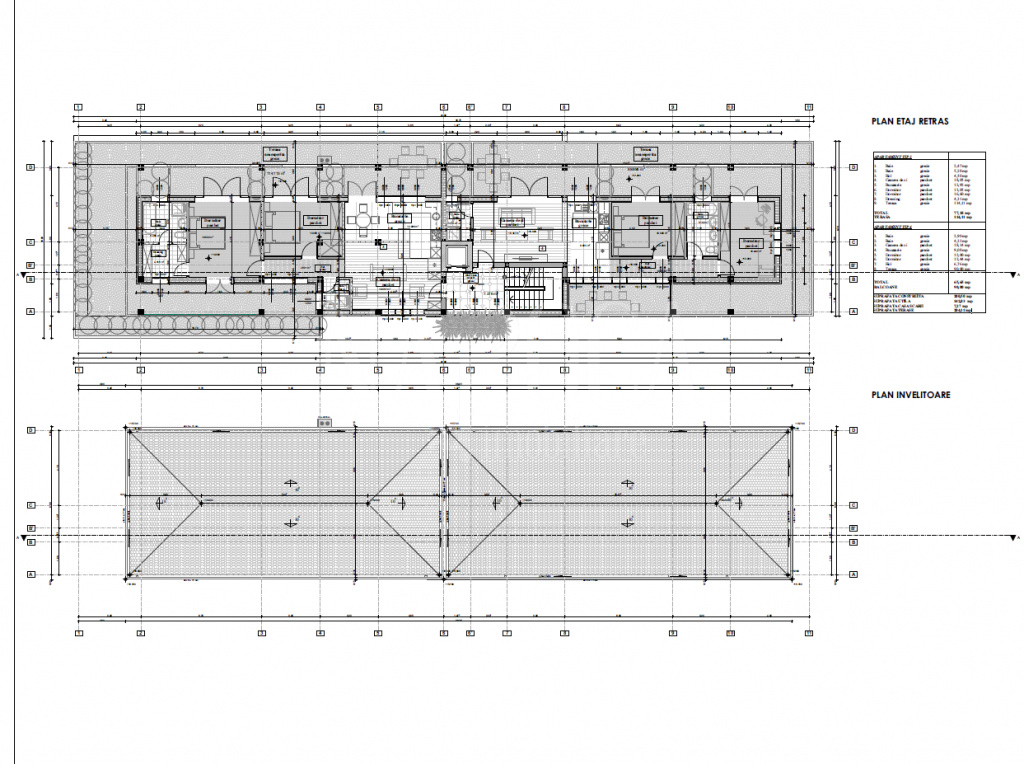
Etaj retras:
APARTAMENT TIP 3
1. Baie 2,47 mp
2. Baie 5,28 mp
3. Hol 4,50 mp
4. Camera de zi 18,05 mp
5. Bucatarie 12,92 mp
6. Dormitor 13,05 mp
7. Dormitor 16,60 mp
8. Dressing 4,31 mp
9. Terasa 114,11 mp
TOTAL 77,18 mp
TERASA 114,11 mp
APARTAMENT TIP 4
1. Baie 2,90 mp
2. Baie 4,33 mp
3. Camera de zi 18,14 mp
4. Bucatarie 9,08 mp
5. Dormitor 12,00 mp
6. Dormitor 12,44 mp
7. Hol 6,76 mp
8. Terasa 90,00 mp
TOTAL 65,65 mp
BALCOANE 90,00 mp
SUPRAFATA CONSTRUITA 200,50 mp
SUPRAFATA UTILA 142,83 mp
SUPRAFATA CASA SCARII 7,27 mp
SUPRAFATA TERASE 204,11 mp
Pentru mai multe detalii, vizionari si oferte de pret, nu ezitati sa ne contactati!
echipa Napoca Imobiliare
Localizare si Caracteristici
Tip proprietate: Teren
Tip: constructii
Clasificare: intravilan
Cartier: Manastur
Zona: Edgar Ouinet
Suprafata: 1464 m2
Autorizatie de constructie
Certificat de urbanism
Amenajare strazi: asfaltate
Mijloace de transport in comun
Iluminat stradal
Utilitati
Ma intereseaza oferta
Convertor valutar
Calculator de credite
Oferte similare
Teren intravilan pentru constructii de vanzare in Manastur, Cluj Napoca
constructii 21.05 m front 1969 m2
Teren intravilan pentru constructii de vanzare in Manastur, Cluj Napoca
constructii 20 m front 456 m2
Teren intravilan pentru constructii de vanzare in Manastur, Cluj Napoca
constructii 27 m front 570 m2
Teren intravilan pentru constructii de vanzare in Manastur, Cluj Napoca
constructii 15.7 m front 863 m2


